SIGN UP CUSTOMER LOGIN
Main Photo

46 Total Photos [Click to View All]

Main Photo
Main Photo

Chicago, IL 60631

$699,900
New / MLS# 12599530 / Residential - Single Family / Chicago
4 Beds
2 Baths
1 Half Bath
1716 SqFt

Baird & Warner Mary Vallely Agent Cell: 847.687.4070 Email

Mortgage Calculator

%
years/fixed
yearly
yearly (est.)
(Payments are an estimate and may vary by lender)

Estimated Payment

$ 2,479.39 per month $1,555.33 Principal & Interest $719.92 Property Tax $204.14 Homeowner's Insurance
Get your competitive financing options.

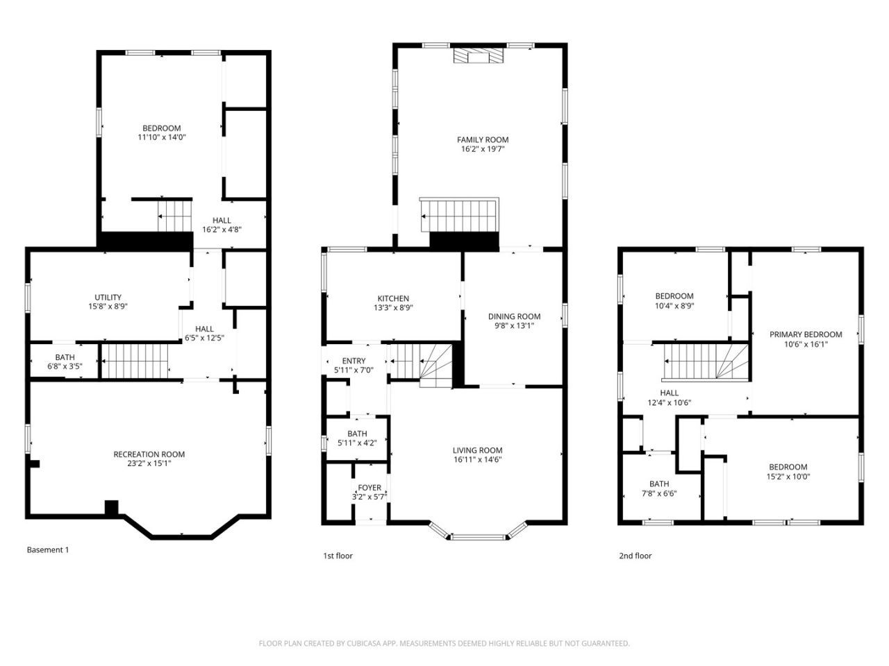
Property Details

Property Type: Residential - Single Family
Basement: Finished, Full
Basement: Yes
Cooling: Central Air
Fireplaces: 1
Garage: 2
Heating: Natural Gas, Forced Air
Home Style: Georgian
Lot Size: 0.11 Acres
Roof Type: Asphalt
Taxes: $8,639
Year Built: 1944

Amenities

Granite Counters

Feature Descriptions

Additional rooms: Recreation Room
Appliances: Range, Microwave, Dishwasher, Refrigerator, Bar Fridge, Washer, Dryer, Humidifier
Association Includes: None
Dining Room: Separate
Exterior: Brick
Fireplace Location(s): Family Room
Laundry: In Unit
Lot Dimensions: 38x125
Other Equipment: TV-Cable, Ceiling Fan(s), Sump Pump
Parcel#: 09362060140000
Parking: Garage Door Opener, Yes, Garage Owned, Detached, Off Alley, Owned, Garage
Sewer: Public Sewer
Total Rooms: 9
Township: Jefferson
Water: Public

Room Information

Recreation Room: 23X15
Bedroom 2: 15X10
Bedroom 3: 10X9
Bedroom 4: 14X12
Dining Room: 13X10
Family Room: 18X16
Kitchen: 13X9
Laundry: 16X9
Living Room: 17X14
Primary Bedroom: 16X10

Schools

High School: Taft High School
Middle School: Ebinger Elementary School
Elementary School: Ebinger Elementary School
School District: District 299

Disclaimer: The accuracy of all information regardless of source, including but not limited to square footage and lot size, is deemed reliable but not guaranteed nor warranted and should be personally verified through personal inspection by and/or with the appropriate professionals.

Location

See details and scored characteristics about this location.

Listing Office: Coldwell Banker Realty

Listing Office Phone: 773-631-8300



Listing data and photos distributed by MLSGRID
Member Participants (and their affiliated licensees, if applicable) shall indicate on their websites that IDX information is provided exclusively for consumers’ personal non-commercial use, that it may not be used for any purpose other than to identify prospective properties consumers may be interested in purchasing, that the data is deemed reliable but is not guaranteed by MLS GRID, and that the use of the MLS GRID Data may be subject to an end user license agreement prescribed by the Member Participant’s applicable MLS if any and as amended from time to time. MLS GRID may, at its discretion, require use of other disclaimers as necessary to protect Member Participant, and/or their MLS from liability.
Based on information submitted to the MLS GRID. All data is obtained from various sources and may not have been verified by broker or MLS GRID. Supplied Open House Information is subject to change without notice. All information should be independently reviewed and verified for accuracy. Properties may or may not be listed by the office/agent presenting the information.


Login to my Baird & Warner account

Pixel